本システムでは、JavaScriptを利用しています。JavaScriptを有効に設定してからご利用ください。
本文へ
サイトマップ
小
中
大
JP
EN
お問い合わせ
企業情報
トップメッセージ
平和不動産グループパーパス
会社概要
役員一覧
組織体制
沿革
事業所所在地
本店アクセスマップ
平和不動産グループ
広告
受賞実績
事業案内
再開発事業
日本橋兜町・茅場町の街づくり
活性化への取組み
日本橋兜町の歴史・史跡
札幌再開発プロジェクト
再開発実績
ビルディング事業
ビル賃貸物件
住宅賃貸物件
ポートフォリオデータ
アセットマネジメント事業
株主・投資家情報(IR)
経営方針・戦略
株主・投資家の皆様へ
長期ビジョン
中期経営計画
対処すべき課題
事業等のリスク
ディスクロージャーポリシー
個人投資家の皆様へ
すぐわかる平和不動産
個人株主・投資家向けイベント
平和不動産の株主になるメリット
よくあるご質問
財務・業績
業績レビュー
財務ハイライト
財政状況
セグメントの状況
連結財務諸表
連結貸借対照表
連結損益計算書
連結キャッシュ・フロー計算書
設備投資・減価償却費
ポートフォリオデータ
IRライブラリー
決算短信
決算説明会資料・動画
有価証券報告書
FACT BOOK
事業報告書(株主通信)
統合報告書/アニュアルレポート
株式・格付情報
株式の状況
社債・格付け
株主総会
株価情報
株主優待
配当・株主還元
資本金・発行済株式総数の推移
アナリスト・カバレッジ
株式諸手続き
定款・株式取扱規程
IRカレンダー
電子公告
IR受賞実績
IRメール配信
IRサイトの使い方
IRサイトナビ
免責事項
IR情報サイトマップ
ニュース
IRニュース
サステナビリティ
サステナビリティニュース
トップメッセージ
サステナビリティマネジメント
サステナビリティの考え方
サステナビリティ推進体制等
E:環境
環境に対する考え方
気候変動への対策
水資源に対する取り組み
汚染と廃棄物と資源利用に対する取り組み
S:社会
人権・労働基準
人材マネジメント
多様な働き方の実現
健康と安全
社会サプライチェーン
地域社会等への貢献
株主・投資家への取り組み
G:ガバナンス
コーポレート・ガバナンス
社外取締役
内部統制システム
コンプライアンス
リスクマネジメント
リスク管理
情報セキュリティ
外部評価
ESGデータ
対照表
第三者保証
サステナビリティレポート
採用情報
新卒採用
キャリア採用
お問い合わせ
プライバシーポリシー
ソーシャルメディアポリシー
サイトのご利用・使い方について
特定個人情報等の適正な取扱いに関する基本方針
金融商品取引業にかかる苦情等への対応について
サイトマップ
企業情報
会社概要
組織体制
事業所所在地
トップメッセージ
役員一覧
平和不動産グループ
平和不動産グループパーパス
沿革
広告
受賞実績
事業案内
再開発事業
ビルディング事業
アセットマネジメント事業
株主・投資家情報(IR)
経営方針・戦略
個人投資家の皆様へ
IRカレンダー
電子公告
IRライブラリー
財務・業績
IRメール配信
免責事項
IRニュースリリース
株式・格付情報
IR情報サイトマップ
サステナビリティ
サステナビリティニュース
トップメッセージ
サステナビリティマネジメント
E:環境
S:社会
G:ガバナンス
外部評価
ESGデータ
対照表
第三者保証
サステナビリティレポート
採用情報
新卒採用
キャリア採用
ホーム
>
事業案内
>
ビルディング事業
>
ビル賃貸物件
>
HF江坂駅前ビルディング[平和不動産プロパティマネジメント貸主物件]
HF江坂駅前ビルディング[平和不動産プロパティマネジメント貸主物件]
印刷する
募集中
HF江坂駅前ビルディング[平和不動産プロパティマネジメント貸主物件]
設備・特徴
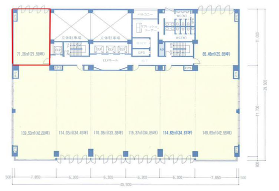
基準階概要
地図
種別
オフィス
所在
大阪府大阪府吹田市江坂町1-13-33
アクセス
地下鉄御堂筋線「江坂」駅徒歩1分
竣工
1990年2月
規模
地上9階/塔屋1階
構造
鉄骨鉄筋コンクリート造
延床面積
11,207.11m
2
施工会社
清水建設株式会社
空室情報
設備・特徴
駐車場
機械式62台
エレベーター
乗用3基、人荷用1基
基準階概要
基準階面積
270坪(891m
2
)
床仕様
タイルカーペット敷、OAフロア50㎜
床荷重
300㎏/㎡
コンセント容量
100VA/㎡
空調方式
個別空調
基準階平面図
地図
物件お問合せ
メールでのお問い合わせ
平和不動産プロパティマネジメント株式会社大阪支店
TEL:
06-6231-1007
受付時間:午前9時00分~午後5時00分(土曜・日曜・祝日を除く)
ビル賃貸物件一覧へ戻る